Paisajismo Arquitectónico

14:01:00 Servicios y Construcciones Valencey 0 Comments

El paisajismo es la rama de la arquitectura que maneja el espacio abierto y los elementos que lo conforman, en busca de crear una relación entre lo abiótico y lo biotico, con un aprovechamiento lógico y estético, aplicando diversos conocimientos para llegar a un resultado optimo que procure a la naturaleza.


La arquitectura de paisaje o paisajista es el arte de proyectar, planificar, diseñar, gestionar, conservar y rehabilitar los espacios abiertos, el espacio público y el suelo. El ámbito de la profesión incluye el dibujo arquitectónico, la restauración medioambiental, la planificación del lugar o región, el urbanismo, el diseño urbano, el desarrollo residencial, la planificación de parques y espacios de recreo y la conservación histórica.




Los arquitectos paisajistas o paisajistas trabajan sobre todos los tipos de estructuras y pequeños espacios exteriores, grandes urbanos o rurales, con materiales duros o de la vegetación, en relación con la hidrología y la ecología.




En la empresa Servicios y Construcciones Valencey 2022, C.A. realizamos paisajismo adaptados al gusto y espacio del cliente, para mayor información siganos en nuestras redes sociales de Facebook:  https://www.facebook.com/Servicios-y-Construcciones-Valencey-2022-CA-925973204186050/
y en nuestro Twitter: https://twitter.com/valencey2022


La Arquitectura minimalista, símbolo de lo moderno

12:45:00 Servicios y Construcciones Valencey 0 Comments

El estilo minimalista proviene de una tendencia donde se rescata el concepto de lo “mínimo“.   Mies Van Der Rohe fue el pionero en esta tendencia al proponer su famosa frase: “less is more” o “menos es más” de ahí deriva el termino y la tendencia de conseguir mucho con lo mínimo indispensable.


El minimalismo se caracteriza por edificios con pocas líneas, espléndidos por su simplicidad de formas y materiales. “Menos es más” es el gran principio del minimalismo con colores llamativos y ambientes amplios y despojados, evitando explícitamente la excesiva ornamentación.



La intención es crear espacios pacíficos, armónicos y funcionales, sin demasiados detalles irrelevantes y objetos innecesarios y redundantes. El minimalismo es una tendencia sobria y austera.

Se podría decir que el minimalismo ha sido interpretado de diversas maneras en el campo de la arquitectura y el interiorismo.  El minimalismo es la tendencia de reducir a lo esencial, sin elementos decorativos sobrantes, para sobresalir por su geometría y su simpleza. Es la recta, las transparencias, las texturas, es la funcionalidad y la espacialidad, es la luz y el entorno. La Arquitectura minimalista se expande con gran rapidez, gracias a la simpleza de sus líneas. Una arquitectura símbolo de lo moderno que utiliza la geometría elemental de las formas.


El estilo minimalista es un signo de nuestro tiempo. La arquitectura minimalista no es fría, es humana, pues destaca la naturaleza y la luz teniendo esta ultima un importantísimo papel. En casi todos los desarrollos modernos está presente este estilo.

Los materiales más usados en una decoración minimalista son la madera, vidrio, acero inoxidable, cromo, espejo, mármol y granito. Se destacan la terminación de los acabados, así que estos deben ser excelentes en su terminación.

Algunas de las principales reglas cuando se trata del estilo minimalista en la decoración de interiores es la organización: todo debe tener su lugar y cuando no esté en uso, debe ser guardado, preferiblemente fuera de la vista.

En las fachadas, hay una economía del lenguaje y los medios, austeridad y sencillez en respuesta al momento actual. Pero no por ello las fachadas minimalistas pierden protagonismo. Las casas minimalistas son protagonistas por ellas mismas y no por una decoración recargada. El uso de la luz y la espacialidad son muy particulares en este estilo. La armonía de materiales y formas distinguen a esta corriente presente en todas las manifestaciones del arte. Sobresalen las líneas rectas y bloques de formas puras y simples. Desde el color se tiende a la monocromía de tonos suaves predominando el blanco y el crudo. Siempre creando contrastes de materiales y texturas diferentes.

La arquitectura minimalista utiliza ambientes monocromáticos. Una ruptura en el minimalismo puede estar dada por pintar una pared en un tono más subido que el resto de la ambientación, aunque no permite cambios tan osados como colores brillantes o muy alejados de los neutros.






Casa Brutale: Un impresionante diseño arquitectónico

16:35:00 Servicios y Construcciones Valencey 0 Comments



Si usted está buscando una casa de ensueño, le proponemos esta maravilla de la arquitectura. Una casa bajo el mar es todo un sueño, para algunos de nosotros. Hoy les permitimos soñar un poco y crear, en la mente, la casa de sus sueños. Y, en este sentido, les presentamos una casa bajo el mar y oculta en un acantilado, llamada Casa Brutale. 



Si tienen un poco de curiosidad, les gustará saber que los arquitectos responsables de este ensueño, son los griegos Laertis Antonios Ando Vassiliou y Pantelis Kampouropoulos. Ambos han creado un diseño para una vivienda unifamiliar, siguiendo diseños minimalistas, con ésta más que impresionante vista al mar.

Aquí les mostramos la fachada y el interior de la vivienda. Una casa dentro de un espacio desnudo y natural. Toda simpleza con líneas rectas y de armonía contemporánea.



El diseño de esta vivienda respeta el medio ambiente. Con una casa, casi camaleónica (dependiendo del color del mar y el cielo) a través de la fachada de vidrio, se observa un paisaje único.




La luz natural invade toda la casa, convirtiéndola en el centro del escenario y se crean ilusiones ópticas, a través del agua del mar. El salón es sencillo y lo que lo hace magnífico son las preciosas vistas y el juego de luces y sombras.


La mesa del comedor, está fabricada en hormigón colado. Y, para completar este rincón se han añadido unos bancos, también hechos en hormigón y chapados en madera. El hormigón es un material barato que puede cambiar la decoración de una vivienda, en poco tiempo y a bajo coste.


Por otro lado, esta increíble casa cuenta con: dos habitaciones, cocina, dos cuartos de baño y una piscina, en la que se puede nadar y actúa como techo… diseñado todo bajo las actuales tendencias minimalistas. 


Al subir la escalera hasta la segunda planta, se llega a la piscina. La azotea es totalmente de lujo y la piscina crea una serie sensaciones al formar parte del techo.

La piscina, de agua salada y fabricada con vidrio extra reforzado, se sitúa entre las paredes de la vivienda. De esta manera deja pasar parte de la luz natural iluminando así todas las estancias. Es un efecto increíble. Las tonalidades grises del hormigón y la madera, dan un toque excepcionalmente elegante a la vivienda. La suave luz acaricia toda la atmósfera y al hormigón del que está hecho la cama. Los acabados de la misma, son en madera. Las paredes ayudan mucho a crear el juego de luces, dado que también han colocado algunos espejos para reforzar este efecto. Además, existe otra habitación para invitados (con dos camas al menos). Los dormitorios están colocados justo al lado del trastero, del cuarto de baño.


No podía faltar este espacio. La vivienda, dispone de todo lo necesario para vivir y además la estética de la casa es simplemente y hermosa. La cocina es pequeña y práctica. Los detalles en acero negro y madera envejecida en marrón y rojo, complementan una bella composición.

En esta fotografía también verás al fondo, la escalera que lleva a la segunda planta y desprende un gran carácter minimalista, con peldaños finos y hechos en acero.Toda la planta baja y la organización del espacio y los muebles, hacen que desde la cocina se pueda ver la fachada de vidrio y esa maravillosa vista mientras están cocinando.


Tal y como ocurre en todas las casas, se hace la luz. Pero esta iluminación tan especial, se debe al carácter natural de la arquitectura… donde una vivienda se encuentra en el propio acantilado. Cuando la noche se hace… es un espectáculo ver la iluminación de esta casa. Esta residencia junto al mar fue construida con materiales muy sencillos, para no dañar el medio ambiente. Entre estos materiales se haya la madera, el hormigón y el vidrio. Además y evidentemente, la casa tiene un buen aislante térmico, por lo que el frío pasa a otro plano. 


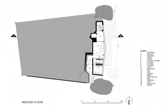
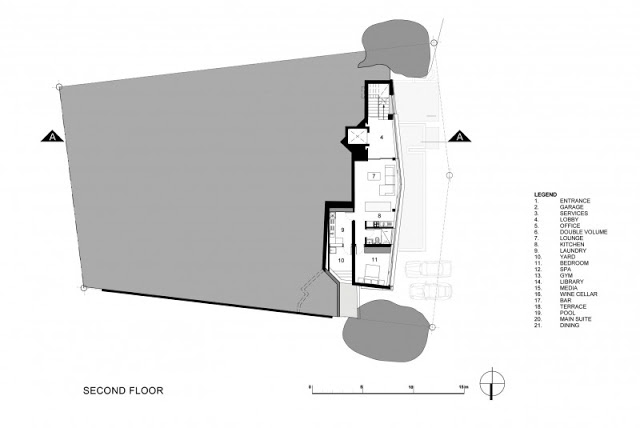
El plano de la casa. es realmente sencillo Esquemas como este pueden ayudarte a inventar la casa de tus sueños. ¿Dónde le gustaría vivir? ¿En la playa o en la montaña?

Esta casa está enclavada en un acantilado y con impactantes vistas hacia el mar Egeo. Particularmente parece una maravilla de la ingeniería y la arquitectura y aunque no tiene demasiada privacidad, tampoco habrá muchas personas nadando al lado del acantilado. Más que un hogar, parece un retiro donde una persona humana y la naturaleza se funden, dentro de un hermoso homenaje poético.

¿A usted también le gustaría vivir en una casa sorprendente? ¿Qué le ha parecido esta casa bajo el mar? ¿Cuál sería su enclave favorito para ubicar la casa de tus sueños? 

Visítenos, cuéntenos su sueño y nosotros se lo haremos realidad. 

Ese es nuestro trabajo.



Casa de ocho pisos de estilo Contemporáneo en Ciudad del Cabo

8:58:00 Servicios y Construcciones Valencey 0 Comments

El Estudio de Ciudad del Cabo SAOTA - Stefan Antoni Olmesdahl Truen Arquitectos - han diseñado esta residencia en colaboración con el estudio de Interiorismo Interiores Okha.
Esta casa de ocho pisos de estilo contemporáneo está situada junto a otros dos proyectos diseñados por SAOTA en Clifton, un suburbio de Ciudad del Cabo, Sudáfrica.


"Los clientes, una pareja británica en Ciudad del Cabo, pidieron seis dormitorios, y siete en el nivel del hogar que hace la mayor parte del sitio, las vistas y la montaña. Los niveles más bajos de la estructura existente fueron remodelados totalmente, mientras que el nivel superior fue demolido para permitir dos nuevos niveles.


"La inspiración fue extraída de la montaña y los colores oscuros se utilizaron en la fachada, permitiendo que el edificio bajara visualmente en la montaña, en lugar de ser una construcción molesta", dice Greg Truen, socio del proyecto. El sitio goza de espectaculares vistas, donde el impacto del sol es un informante clave que contribuye al diseño en general.


El sol es una influencia determinante en la propiedad inspirada en la elección de pantallas, persianas y celosías que dan a los niveles más bajos su distintivo de seriedad. La sala de estar puede abrirse hacia el oeste y el este por completo, dándole la sensación de un pabellón abierto.


Los acabados y los detalles han sido cuidadosamente considerados para lograr un todo integrado y sin esfuerzo visual. El exterior del edificio está revestido de polvo de aluminio recubierto con lo que resultó en un acabado superficial muy robusto y preciso. Internamente, una mirada mucho más caliente se logra mediante el uso de la madera de nogal. Mármol negro y vidrio se han integrado en el diseño como los acentos.


La casa está salpicada de delicias de diseño inusual. La zona de entrada circular, revestida de madera de nogal, es una de las principales características de la casa. El espacio es amplificado por una instalación de alumbrado fascinante de vidrio retroiluminado que se desplomó, que hace un efecto de "otro mundo". Una elegante escalera de madera flotante se emplea para colgar las barras de acero inoxidable para una toma de restauración en una balaustrada. Otros detalles incluyen la caja de madera de nogal de cocina vestida, la piscina de granito revestido de borde de flujo y la escultura de barras en voladizo de fibra de carbono. Los clientes querían mantener el interior, inclinación y enfocado tanto como fuera posible, y la selección de los muebles y la iluminación es a la vez gráfica y fuerte".

















Sistemas Dibravo para Servicios y Construcciones Valencey 2022 C.A. Con la tecnología de Blogger.